Home
About
Interior Design
Styling
In Progress
Collaboration
Inquiry
Home
About
Interior Design
Styling
In Progress
Collaboration
Inquiry

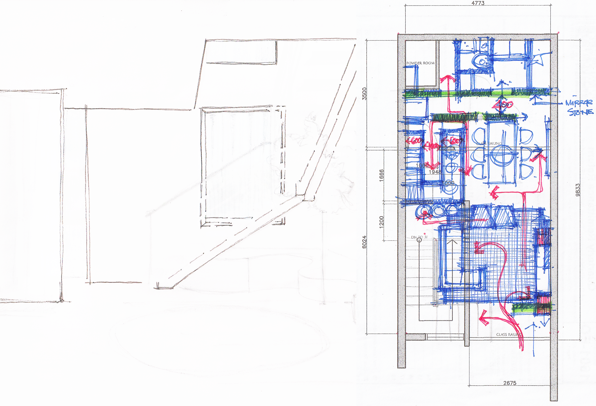
M Residences Communal Areas

Preliminary Studies & First Proposal: July-Aug. 2020. Status: First Phase of Construction

You may also like:

Penthouse
WIP: Quadrant House
Office at Padre Faura
WIP: 00A
Makati
Angeles Residence 2
Cafe at Padre Faura
BF ParaƱaque
Two Bedroom Unit in Pasig
Office Renovation in Pasig
↑Back to Top